MLS# 1943030 SOLD $820,000
Bedrooms: 3
Bathrooms: 2
Square Feet: 1,992
3535 Foxpoint Court
Traverse City, MI
Listing Agent
Leanne Deeren
REO-TCFront-233021
231-947-9800
leanne.deeren@gmail.com
Property Description
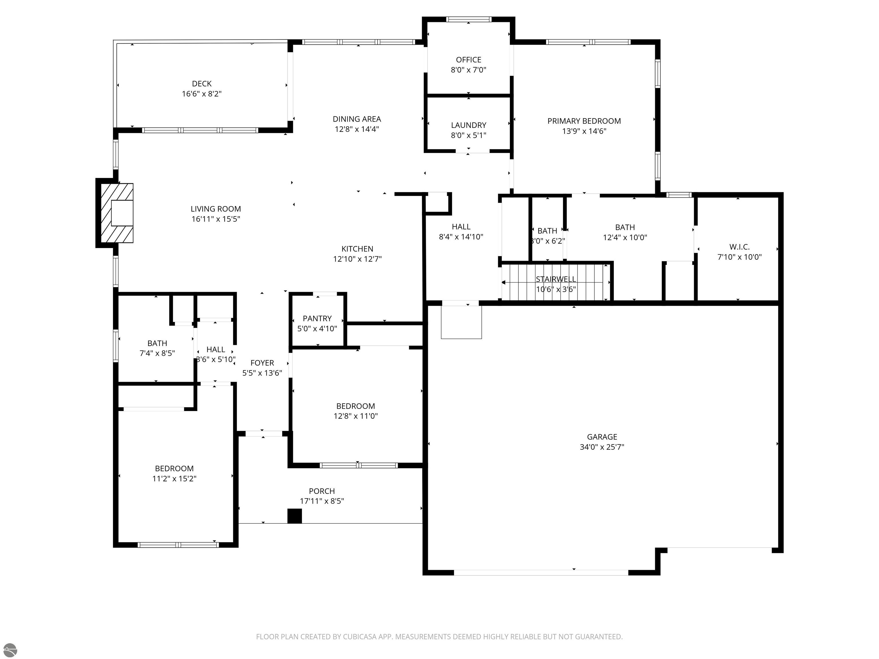
Beautiful custom 2023 built home located in the highly desirable Hills of Huellmantel in Long Lake Township. As you arrive, you’re welcomed by timeless curb appeal featuring professional landscaping along with an irrigation, striking stone accents, a 17 x 8 front porch, classic board & batten siding, and a spacious three-car garage. Inside, the home opens to a large foyer and an inviting living room with a fireplace, perfect for cozy evenings or entertaining guests. The thoughtfully designed layout includes a formal dining room, a spacious kitchen with granite countertops, and an office space ideal for working from home. Bathrooms also feature granite countertops for a cohesive, upscale feel. The primary suite offers a private bath and a generous walk-in closet. Just off the dining room, enjoy a beautiful covered 16 x 8 deck overlooking peaceful seasonal views, an ideal spot for relaxing. The walkout lower level offers ample space to customize to your needs, whether you envision a home gym, additional living or entertainment area, or more bedrooms. The lower level is already plumbed for an additional bathroom and features a sliding door that opens to a gorgeous custom patio. Residents of the Hills of Huellmantel enjoy common wooded areas and trails, offering a wonderful blend of nature and neighborhood living.
Property Details
- Beds: 3
- Baths: 2
- Style: Ranch
- Condo: No
- Finished Square Feet: 1,992
- Acres: 0.55
- School District: Traverse City Area Public Schools
- Township: Long Lake
- County: Grand Traverse
- Year Built: 2023
- Basement: Walk-Out Access, Daylight, Egress Windows, Bath/Stubbed, Finished, Insulated Concrete Panels
- Garage: Attached, Garage Door Opener, Paved, Concrete Floors
- Interior: Entrance Foyer, Walk-In Closet(s), Pantry, Granite Bath Tops, Granite Counters, Kitchen Island, Mud Room, Formal Dining Room, Vaulted Ceiling(s), Drywall, Ceiling Fan(s), Cable TV, High Speed Internet
- Exterior: Countryside View, Sprinkler System, Sidewalk, Rain Gutters
- Appliances: Refrigerator, Oven/Range, Disposal, Dishwasher, Microwave, Water Softener Owned, Washer, Dryer, Exhaust Fan, Gas Water Heater, Blinds, Drapes, Curtain Rods, Smoke Detector(s)
- Out Buildings: None
- Heating/Cooling Source: Forced Air, Fireplace(s), Natural Gas
- Heating/Cooling Type: Central Air
